Home
Te huur
De locatie
Het gebouw
Links
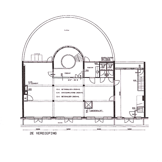
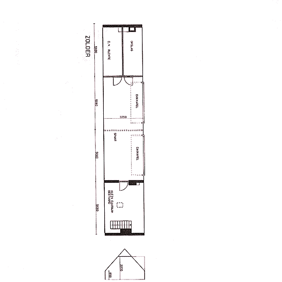
Het gebouw - Plattegronden
Begane grond:
2e verdieping + zolder:
Souterrain:
terug